ROMANTICO BILOCALE CON BELLISSIMO AMPIO GIARDINO IN ELEGANTE PALAZZINA

Martinengo | 135.000,00 | Mq 68,2 | 2 | 0 | 1

Descrizione

CONTATTI PER INFO ED APPUNTAMENTI: tel. 0363 / 913347
a pochi passi dal centro, proponiamo un'elegante e raffinata palazzina con i nuovi canoni di costruzione per un totale confort abitativo.
CLASSE ENERGETICA A4
La posizione riservata ed immersa nel verde , garantisce un privilegiato habitat.
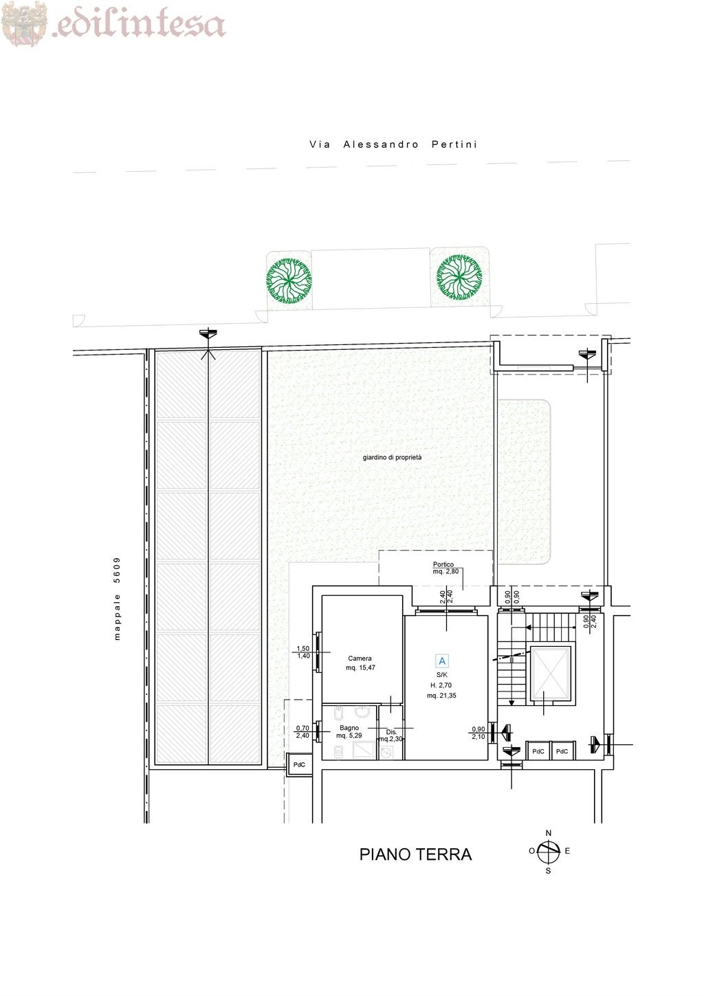
L' appartamento ha un bellissimo giardino con comodo portico per pranzare e cenare all'aperto e passare piacevoli momenti di relax.
La zona giorno luminosa poiche' si affaccia sul giardino ed Il reparto notte ha una confortevole camera matrimoniale, un vano lavanderia e ripostiglio ed un comodo bagno.
POSSIBILITA' DI BOX a partire da 20.000€
La palazzina verra' terminata a MAGGIO 2027
app. A

Dettagli

  • Riferimento: 6084
  • Tipologia: Appartamento
  • Comune: Martinengo
  • Zona:
  • Cucina: Angolo cottura
  • Camere: 0
  • Bagni: 1
  • Box:
  • Piano: Terra di 2
  • Anno costruzione: 2026
  • Stato conservazione: Nuovo
  • Stato: In costruzione
  • Spese cond. annue €:
  • Riscaldamento: Autonomo
  • Caratteristiche

    Ascensore, Giardino di proprietà 110 mq, Predisposizione condizionatore, Predisposizione allarme

    Efficienza energetica

    Classe A4

    Prestazione energetica del fabbricato inverno estate

    Localizzazione - via Alessandro Pertini Martinengo

    Richiedi informazioni

    039.2186938 Whatsapp

    Ai sensi e per gli effetti degli articoli 13 e 6 del Regolamento UE 2016/679, dichiaro di aver preso visione dell’informativa di Edilintesa Servizi Immobiliari Srl per il trattamento dei dati personali.

    Via Zucchi, 25/27 - 20900 Monza (MB) - Tel 039.2186938


    ROMANTICO BILOCALE CON BELLISSIMO AMPIO GIARDINO IN ELEGANTE PALAZZINA

    2 | Mq 68,2 | 135.000,00

    via Alessandro Pertini Martinengo

    CONTATTI PER INFO ED APPUNTAMENTI: tel. 0363 / 913347
    a pochi passi dal centro, proponiamo un'elegante e raffinata palazzina con i nuovi canoni di costruzione per un totale confort abitativo.
    CLASSE ENERGETICA A4
    La posizione riservata ed immersa nel verde , garantisce un privilegiato habitat.
    L' appartamento ha un bellissimo giardino con comodo portico per pranzare e cenare all'aperto e passare piacevoli momenti di relax.
    La zona giorno luminosa poiche' si affaccia sul giardino ed Il reparto notte ha una confortevole camera matrimoniale, un vano lavanderia e ripostiglio ed un comodo bagno.
    POSSIBILITA' DI BOX a partire da 20.000€
    La palazzina verra' terminata a MAGGIO 2027
    app. A

    Riferimento: 6084

    Tipologia: Appartamento

    Comune: Martinengo

    Zona:

    Cucina: Angolo cottura

    Camere: 0

    Bagni: 1

    Box:

    Piano: Terra di 2

    Anno costruzione: 2026

    Stato conservazione: Nuovo

    Stato: In costruzione

    Spese cond. annue €:

    Riscaldamento: Autonomo

    Ascensore, Giardino di proprietà 110 mq, Predisposizione condizionatore, Predisposizione allarme

    Efficienza energetica
    Classe A4
    Prestazione energetica del fabbricato inverno estate